分享一栋自己画的小木屋效果图、带平面图及3DMAX源文件
本款木屋为本人去年画的一个小木屋现在分享出来,文件只有效果图及cad平面图还有些参考素材,效果图全部为3000X3000的高清图。
本站展现为带水印效果图,想要高清无水印的请付费下载谢谢!!!
文件没有立面图纸如果有需要可以联系客服绘制(不免费,时间就是金钱)
可绘制全套图纸,建施、水电、结构、加工图纸、材料统计。
不限于本款式,可按需设计。
木屋设计官方站点:https://muwusheji.com/
图素设计:https://atusu.taobao.com/
- 文件类别:RAR(压缩包内包含CAD平面图、3d源文件、JPG高清效果图)
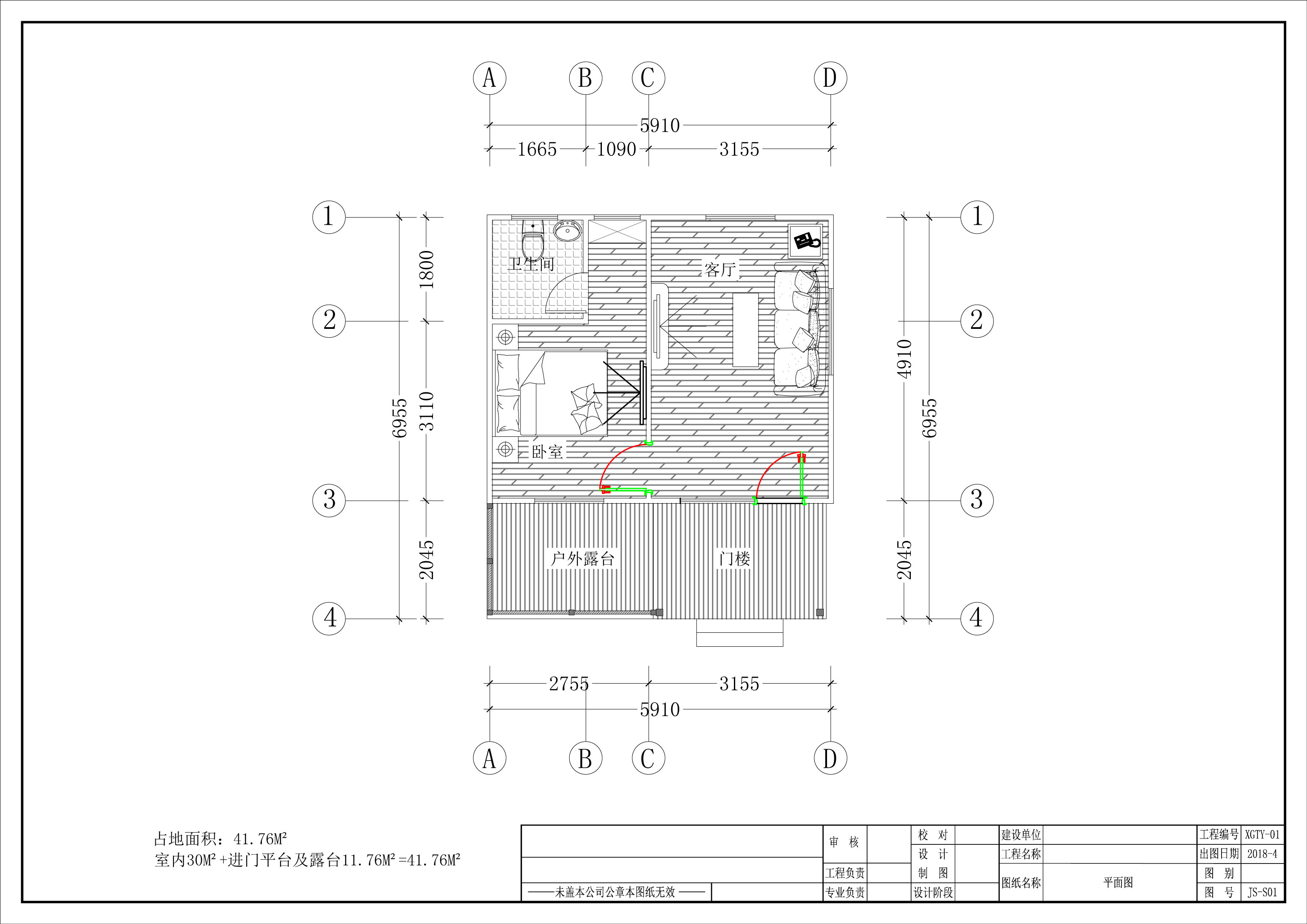
- 面积:41.76 M²
- 户型:一室一厅一卫
- 更新时间:2019-09-01
- 软件大小:33.7MB
- 文件类型:付费
- 下载地址:本地下载






1.本站遵循行业规范,任何转载的稿件都会明确标注作者和来源;
2.本站的原创文章,请转载时务必注明文章作者和来源,不尊重原创的行为我们将追究责任;
3.网络收集的我们都会重新编辑修改和注明文章源。
当前文章地址 https://muwusheji.com/147.html
2.本站的原创文章,请转载时务必注明文章作者和来源,不尊重原创的行为我们将追究责任;
3.网络收集的我们都会重新编辑修改和注明文章源。
当前文章地址 https://muwusheji.com/147.html
THE END
二维码
文章目录
关闭
