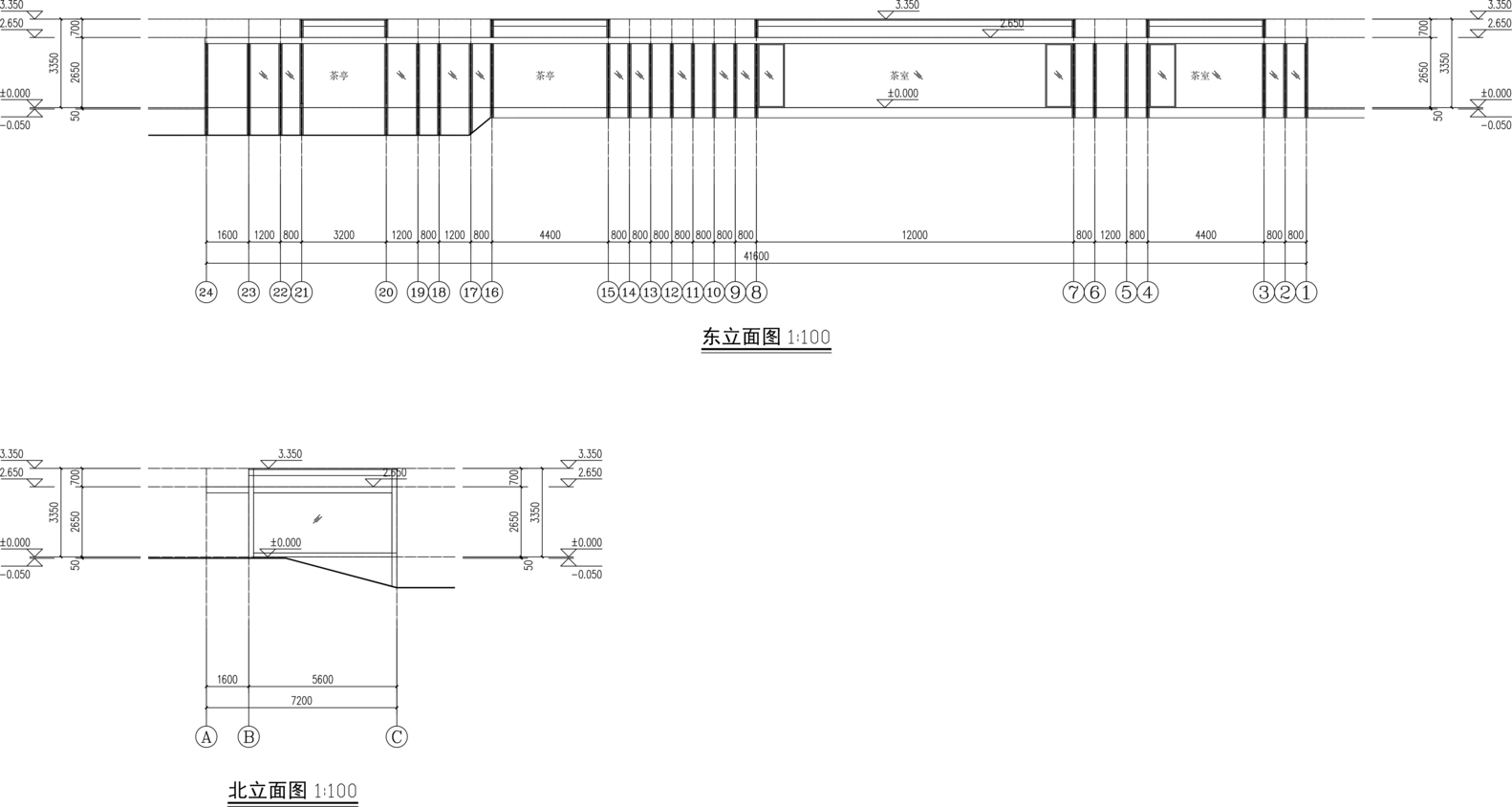
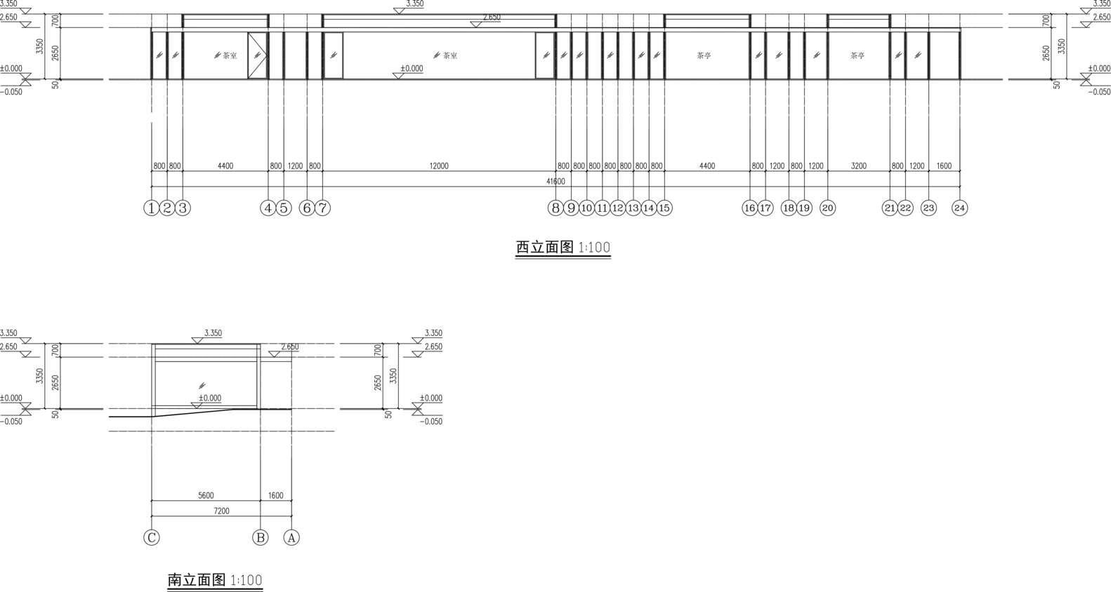
丽水黄圩驿站






















地址:丽水 建筑师: DnA 面积: 197.0 平方米 项目年份: 2017 摄影师: 王子凌, 韩丹
来源:http://www.archdaily.cn/cn/894699/huang-wei-yi-zhan-dna
1.本站遵循行业规范,任何转载的稿件都会明确标注作者和来源;
2.本站的原创文章,请转载时务必注明文章作者和来源,不尊重原创的行为我们将追究责任;
3.网络收集的我们都会重新编辑修改和注明文章源。
当前文章地址 https://muwusheji.com/233.html
2.本站的原创文章,请转载时务必注明文章作者和来源,不尊重原创的行为我们将追究责任;
3.网络收集的我们都会重新编辑修改和注明文章源。
当前文章地址 https://muwusheji.com/233.html
THE END
二维码
文章目录
关闭
