搜索内容
搜索
图文
图集
浅谈
个人设计
主页
图集
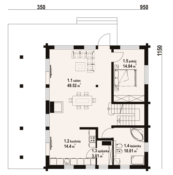
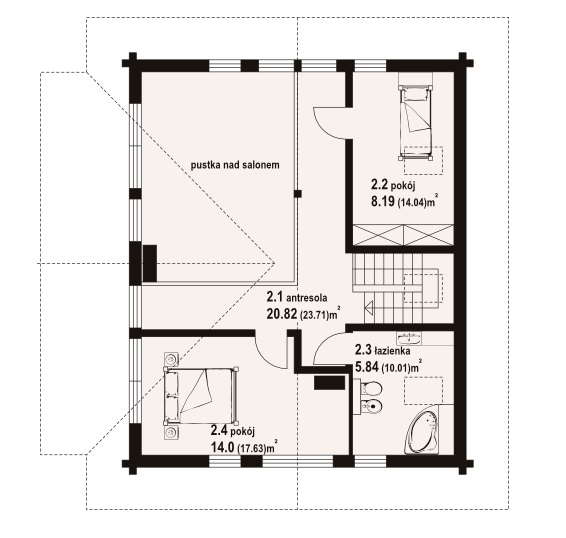
重型双层木屋别墅设计图
qinyuhui
•
2021年9月3日 am10:32
•
图集
想要木屋建设及木屋方案设计、木屋图纸、木屋效果图请联系设计师
1.本站遵循行业规范,任何转载的稿件都会明确标注作者和来源;
2.本站的原创文章,请转载时务必注明文章作者和来源,不尊重原创的行为我们将追究责任;
3.网络收集的我们都会重新编辑修改和注明文章源。
当前文章地址 https://muwusheji.com/238.html
THE END
度假木屋
木屋
木屋CAD
木屋加工图
木屋图纸
木屋定制
木屋平面图
木屋效果图
木屋方案
木屋施工图
木屋设计
分享
二维码
个性木屋别墅
< <上一篇
山地梁柱型豪华木屋别墅
下一篇>>
文章目录
关闭
目 录