土耳其模块化木结构,拼装的松木框架建筑




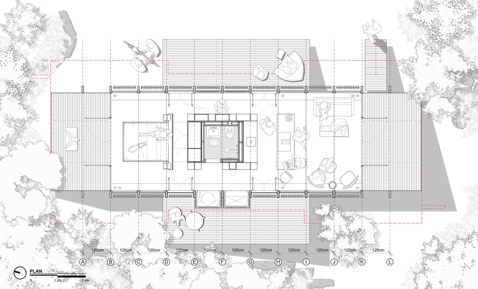
模块化单元是一种小型的,模块化的,非网格结构的建筑原型,它被设计为可回收的并且适用于各种场所。通过它的简洁性,灵活性和材料的选择,该结构旨在为用户的日常生活带来美感;让他们将其纳入自己的日常景观中,并且与周围的自然环境联系起来,将其碳足迹降到最低。一个单体模块包含两块未处理的落叶松木框架以及它们之间的覆盖部分。







落叶松木结构以及封闭的面板是提前制作好的,所以很容易在现场安装以减少安装时间。陡峭的三角形屋顶覆盖物的细部由三种材料组成 - 木头,铝和铜;最新的一种材料被用来覆盖MU50。 这是一个多缝的被动气候控制表面:当层压木屋顶结构上方的热防护和防水层面板饰提供了常规系统的功能时;安装在实际屋顶表面上方的铜表面可通过在设备上方产生连续的空气流动和遮挡来提供有效的被动控制并减少热量获取。该屋顶还装有光伏板和太阳能板,使它们成为设计语言的集成组成部分。该部门采用了减少环境影响的技术。



该模块化系统的元素可以在数量和材料上变化以容纳不同的建筑功能。随着更多的结构框架的增加,建筑物变得越来越大;它可以保持一个单一,简约,矩形的空间,也可以按一个或多个服务吊舱细分。因此,重复并结合少量相对简单的建筑元素的简单动作就可以产生适合不同用途的各种空间 - 从小型冥想室到住宅。











作为一个建筑原型,无论用途或建造地点是什么,模块化系统的元素被设计成可重复使用和可回收材料构造而成,这些材料易于获得,并且可由本地建筑商在任何特定地点进行组装。这种基本的设计选择确保了对任何大小和用途的建筑物的环境影响最小。从基本元素的重复产生的空间配置有利于自然采光和通风。收集水和制造能源的系统可以被添加到基本单元中,使它们可以完全脱离电网的限制。
来源:http://www.archdaily.cn/cn/938383/
2.本站的原创文章,请转载时务必注明文章作者和来源,不尊重原创的行为我们将追究责任;
3.网络收集的我们都会重新编辑修改和注明文章源。
当前文章地址 https://muwusheji.com/249.html
