COTOOP 比利时工作室



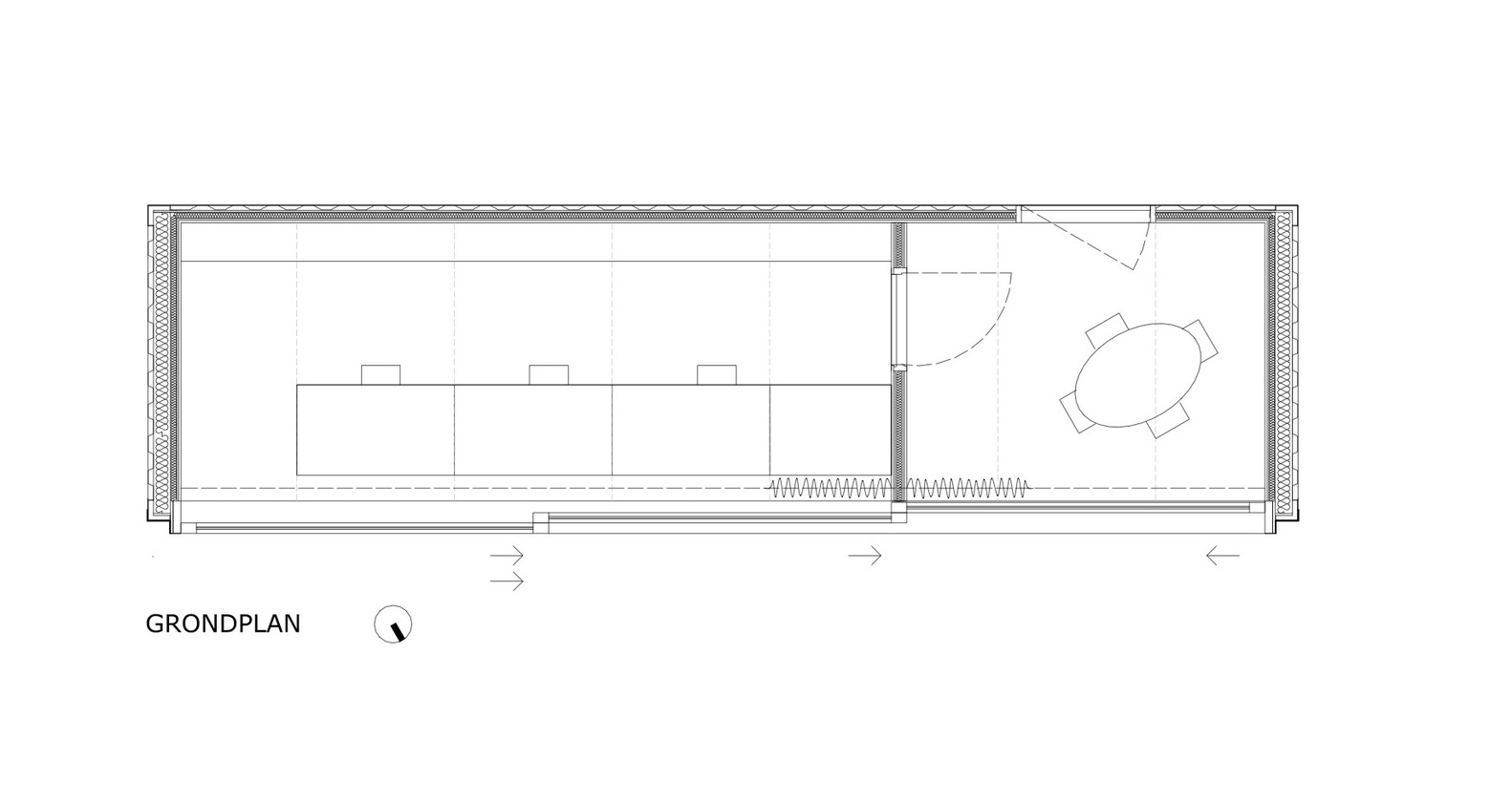
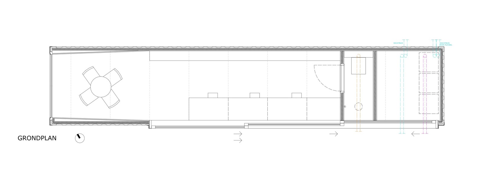
由于工作室的两个办公地点需要更多的办公空间, 我们试图解答这些问题:我们真的可以创造灵活的办公空间吗?像办公室这样的功能空间在周围环境中发挥什么作用呢? 作为建筑师的我们如何将自己展现给未来的客户?我们可否用统一的设计理念,通过设计有趣的可移动办公空间真正实现因地制宜呢?









两个办公室的设计理念都起始于低成本集装箱。这些结构可以被任意移动。得益于很明确的尺寸,集装箱拥有很鲜明的形态表达。不同的尺寸也使得它们可以很灵活的适应不同的场地环境。当然,集装箱也是很适合进行形态变化的。 箱体可以在保留框架强度的情况下在不同的部位进行开口。



















来源:https://www.archdaily.cn/cn/933882/
1.本站遵循行业规范,任何转载的稿件都会明确标注作者和来源;
2.本站的原创文章,请转载时务必注明文章作者和来源,不尊重原创的行为我们将追究责任;
3.网络收集的我们都会重新编辑修改和注明文章源。
当前文章地址 https://muwusheji.com/251.html
2.本站的原创文章,请转载时务必注明文章作者和来源,不尊重原创的行为我们将追究责任;
3.网络收集的我们都会重新编辑修改和注明文章源。
当前文章地址 https://muwusheji.com/251.html
THE END
二维码
文章目录
关闭
