智利河边水上木屋
在当代城市中,舒适性似乎正在将大自然与其表现形式剥离开来,然而仍然有一些特例在其中。它们试图追溯事物的起源,伴随着生存的脆弱性悄悄走出舒适圈。




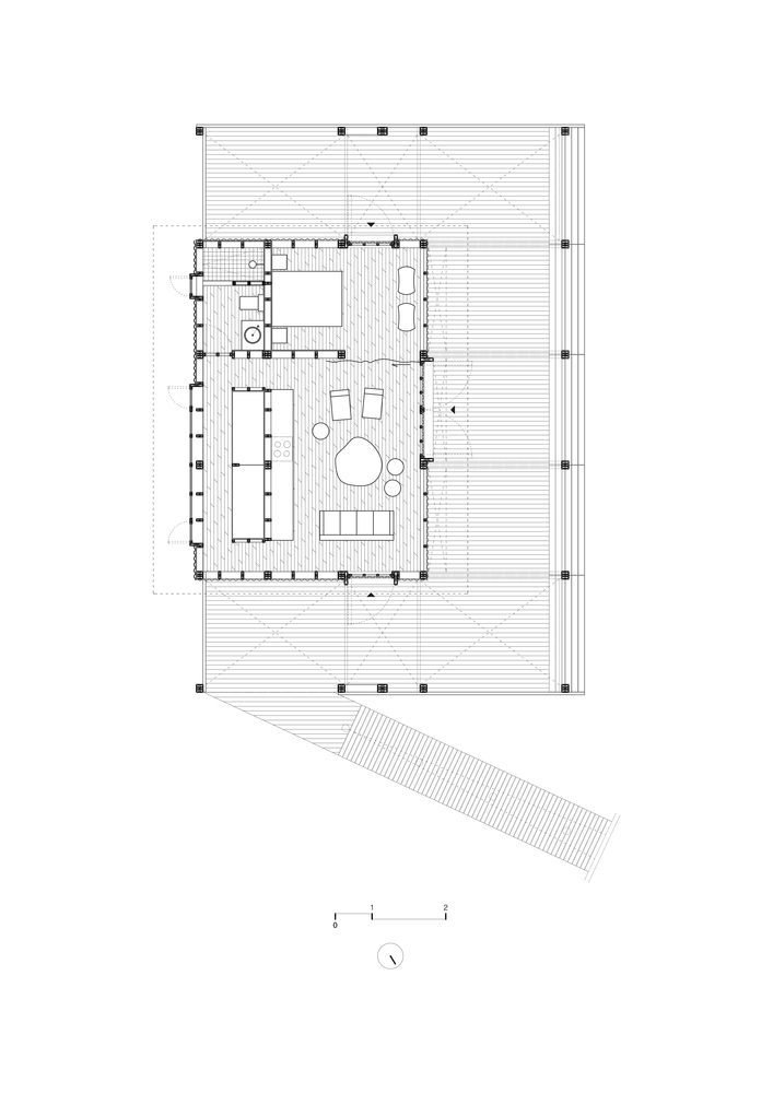
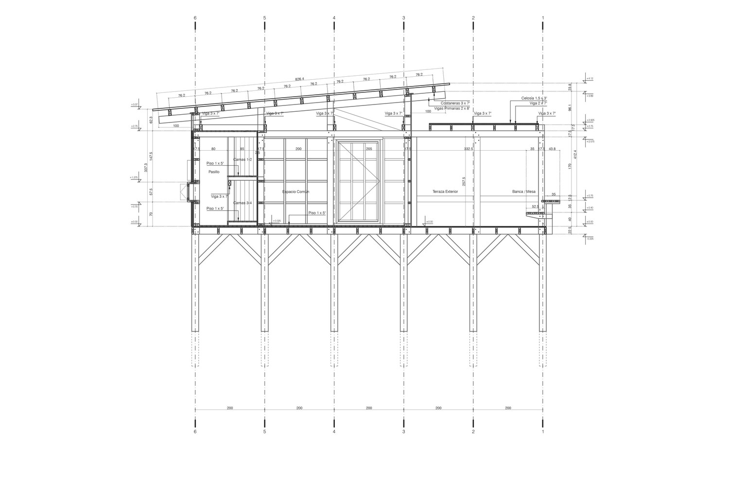
在这片柳树林的中央首先造起了两个两米高,面积达150平方米的大型木制平台。两个家庭曾经在夏季会在郊区随意选一个地点露营。由于普拉塔河三角洲本身是一个洪水区,水平面在一年中会有150厘米的变化,这就导致想在秋季和冬季到达这里变得极为困难。很多年来这两个家庭都希望能以更为舒适的方式更常来这里旅行,于是他们有了想要在郊区建造一个比帐篷更大,能满足基本生活需求的空间的想法。网格状的柱子从底部的平台向外延伸,构成了整个建筑的表面。整个平台只有三分之一的面积有屋顶遮盖,其余部分则成为了能体验风吹雨淋的露天平台,柳树的枝条从柱子间穿梭入内,人们在这里能举办不同的活动。建筑最中央的封闭空间被设计成了一个大型公共空间。围绕着公共空间的是卧室、卫生间和上下铺位床。屋子的立面大部分采用了玻璃窗,屋子的挑高让人能够穿过柳树细长的树干看见天空。





由于场地只能通过河流到达,所有的材料都需要由小船运到这里。这也是建筑师选择使用木材来建造的原因,这种材料不仅价格便宜,也能让大块整体被拆分为小部件。因此为了使用最少的物资、大众尺寸的材料以及当地的木工劳动力,建筑师设计了一个能够让整个结构简单组装的基本施工系统。这个项目因为其极低的预算可以被理解为是一个避难所,而它对周围环境产生最小影响的目标也让“柱子上的帐篷”这个名字实至名归。








-
建筑师: Elton Léniz Arquitectos, Francisco Cruz
- 面积: 150 m²
- 项目年份: 2016
- 摄影师: Francisco Cruz
-
厂家: AutoDesk, Trimble
-
主创建筑师: Francisco Cruz
-
设计团队: Mauricio Léniz, Mirene Elton, Francisco Cruz
-
施工方: Rodrigo Arriagada, Robinson Pino Sanhueza, Gerson Pino Sanhueza
来源:http://www.archdaily.cn/cn/939008/
1.本站遵循行业规范,任何转载的稿件都会明确标注作者和来源;
2.本站的原创文章,请转载时务必注明文章作者和来源,不尊重原创的行为我们将追究责任;
3.网络收集的我们都会重新编辑修改和注明文章源。
当前文章地址 https://muwusheji.com/264.html
2.本站的原创文章,请转载时务必注明文章作者和来源,不尊重原创的行为我们将追究责任;
3.网络收集的我们都会重新编辑修改和注明文章源。
当前文章地址 https://muwusheji.com/264.html
THE END
二维码
文章目录
关闭
