MUWU002新款30.6平方原创轻型小木屋效果图及平立面图纸CAD/3DMAX源文件
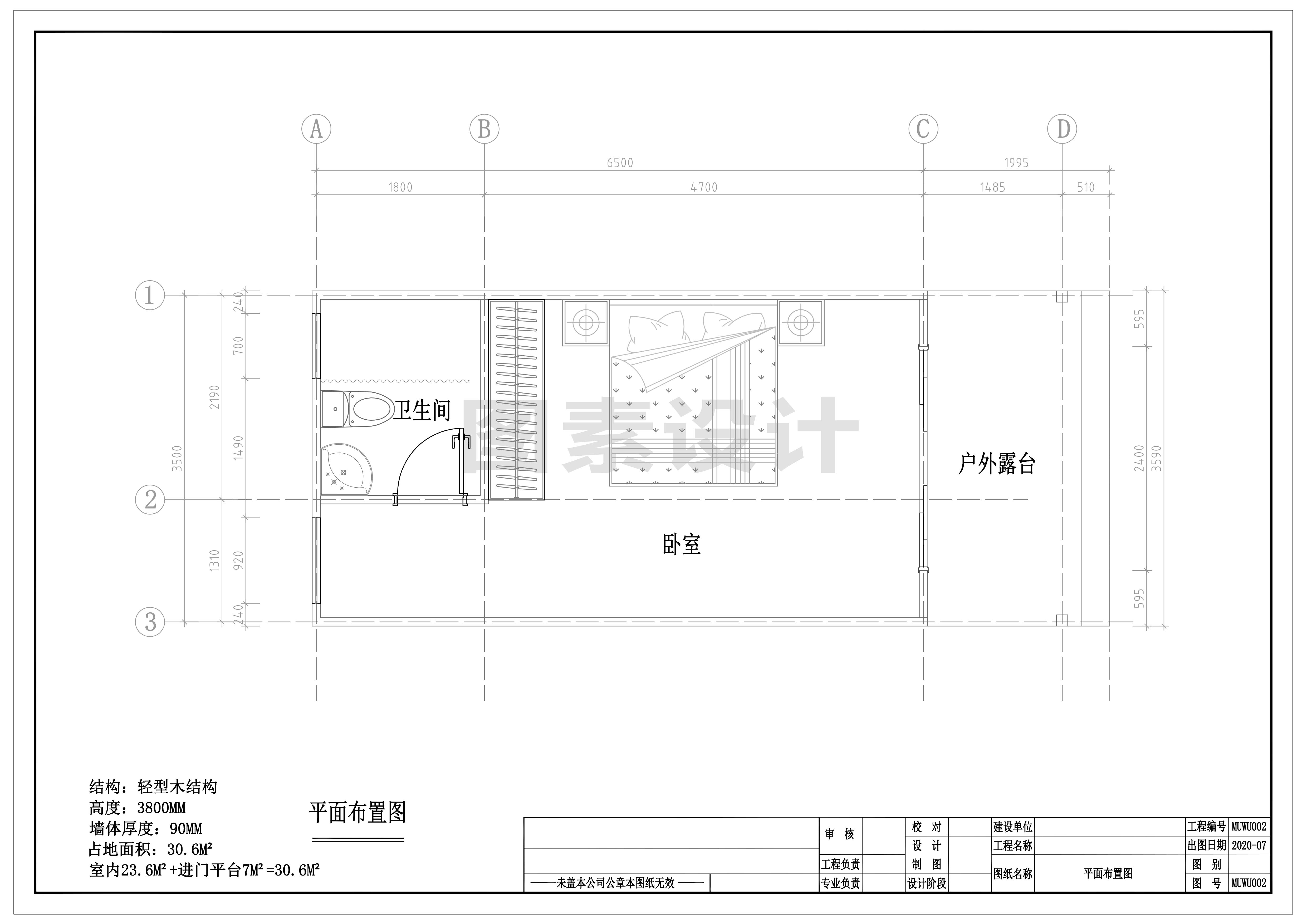
本款木屋为单层单间配套轻型度假木屋,结构为轻型木结构,预设墙体厚度为90MM,3.8米高,本款式方案包含高清效果图,PDF平立面图纸文件,CAD平立面源文件,3DMAX源文件。
木屋占地面积:30.6M² 室内面积23.6M² 露台:7M² 木屋高度:3.8米
本站此款木屋不含3DMAX模型,如需要含模型的请前往淘宝店铺下单谢谢合作!
本款式为原创设计,设计师:覃玉辉/东莞市东城图素图文设计工作室版权所有,已上链司法存证未经授权严禁盗图违者必究。
图纸下载地址:https://vip.muwuyun.cn/124.html










1.本站遵循行业规范,任何转载的稿件都会明确标注作者和来源;
2.本站的原创文章,请转载时务必注明文章作者和来源,不尊重原创的行为我们将追究责任;
3.网络收集的我们都会重新编辑修改和注明文章源。
当前文章地址 https://muwusheji.com/279.html
2.本站的原创文章,请转载时务必注明文章作者和来源,不尊重原创的行为我们将追究责任;
3.网络收集的我们都会重新编辑修改和注明文章源。
当前文章地址 https://muwusheji.com/279.html
THE END
二维码
文章目录
关闭
