TOUCH Architect木屋
基地位于曼谷东侧一小时车程处的彩琼骚府(Chachoengsao),这里的郊区生活风貌和城市相近,有许多工厂和大海(泰国湾),所以也就不可避免的造成了土壤盐分过高的情况。项目所在的基址是一块带有人工池塘的平坦土地。
人工池塘最初的修建是为了供水,同时给人以视觉上的氛围感和舒适感。但随着盐渍土的累积,池塘中的水质逐渐呈现微咸化,使得其无法再被日常使用,也无法用于农田浇灌。所以为了将这片低生物多样性的水塘变为可用的淡水资源,雨水对其所产生的稀释作用就显得尤为重要。
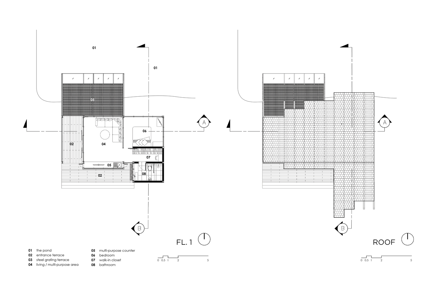
私宅被设定为水处理环节的一部分,并在造型和建造手段上都有着特定的考量。方案源自一个简单的立方体,沿着对角被切成两半,以提供最大的倾斜悬挑屋面用于排水。此外,建筑师还为这栋小房子配备了单户住宅所需的所有功能,将其打造成一个小型且经济适用的实用小宅,并兼顾可持续性。
开放平面的起居空间可适应多需求的空间场景,诸如家庭聚会、餐饮、额外的睡眠休息区等,与私密和半公共空间都紧密相连。临水侧设有一间卧室和户外露台,屋顶渐次退进,作为建筑遮阳元素,呈现出层次分明的开放性。入口平台享有整个私宅最高的开放性,可望见周围的绝佳景致;而起居室和卧室则可以让使用者享有在坐下,甚至平躺时观赏全景视野的可能。
使用耐用铝制格架的墙体是另一处隔热遮阳措施。带有沥青瓦屋顶的钢结构可实现快速简便的安装,并具有轻便耐用的排水功能。 悬臂式户外露台采用钢格板,以让雨水直接落入池塘,并通过水汽蒸发的方式冷却地板上方的空气。此外,铝制格架不仅耐用、维护成本低且使用时间长,其还因采用的夹锁安装方式,可轻松地重新应用于其他建筑物的建造情景。

-
建筑设计: TOUCH Architect
- 面积: 90 m²
- 项目年份: 2021
- 摄影师: Anan Naruphantawat
-
厂家: Alumet, COTTO, ID ROOF, Rococo, T-Rex Steel, Tree Concept
-
主创建筑师:Setthakarn Yangderm, Parpis Leelaniramol
-
设计团队:Pitchaya Tiyapitsanupaisan , Tanita Panjawongroj
-
结构土木工程师:Chittinat Wongmaneeprateep
-
Country:泰国
来源:https://www.archdaily.cn/cn/967253
1.本站遵循行业规范,任何转载的稿件都会明确标注作者和来源;
2.本站的原创文章,请转载时务必注明文章作者和来源,不尊重原创的行为我们将追究责任;
3.网络收集的我们都会重新编辑修改和注明文章源。
当前文章地址 https://muwusheji.com/322.html
2.本站的原创文章,请转载时务必注明文章作者和来源,不尊重原创的行为我们将追究责任;
3.网络收集的我们都会重新编辑修改和注明文章源。
当前文章地址 https://muwusheji.com/322.html
THE END
二维码
