踏石而上,漂浮景观木屋 / HAMISH&LYONS
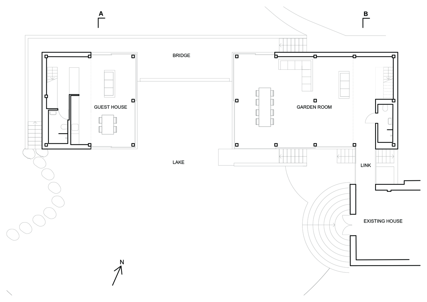
三栋断开的、未充分利用且易受洪水侵袭的房屋被两座新建筑所取代,它们为现有住宅提供了额外的居住空间。建筑师为5个男孩提供了特别的设计。该设计希望让建筑平静地融入自然之中。建筑师通过引入自然光,并采用有机结构、自然材料和新的景观设计得以实现。

两栋新建筑中较小的一栋是一个独立的客房,附有厨房/起居空间、公用走廊、浴室和床铺。较大的建筑作为主要生活空间,也包含一个浴室和床铺。该设计通过一座玻璃桥结构与现有建筑相连接。这两座建筑都可以互相“打开”,因为其底层架空的玻璃被设计滑动且可打开的门板。

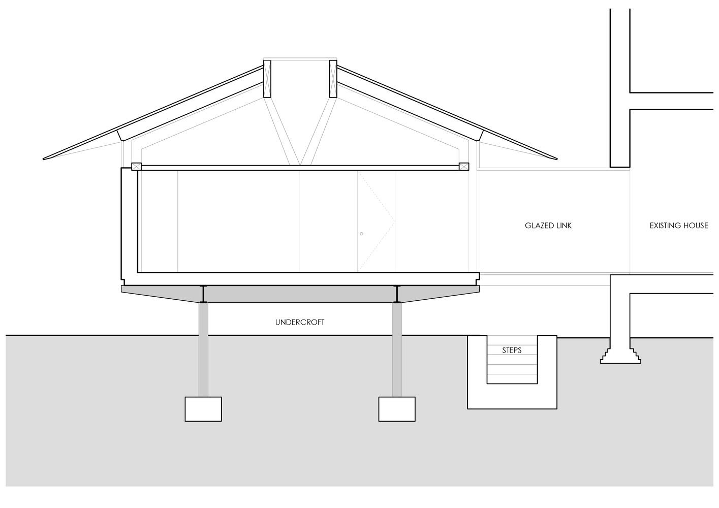
建筑师将湖面上的建筑架空,使其免受洪水的侵扰,同时又可以在现有建筑的底层游泳。该设计的主要特征是屋顶及其1.5米的悬挑屋檐,在夏季为室内提供遮阳,同时提供一个由内而外融合的遮阴走道。

硬木材质的宽扶手、甲板和屋顶檐口为这些空间创造出温暖的触感。同时,建筑师采用砖与现有的庄园住宅相联系,营造出整体、直线形且轻松漂浮在水面上的印象。建筑师尤其选用了较长的砖块尺寸以强调新建筑的水平性。

最小的钢结构设计让人感觉建筑仿佛漂浮在水面之上。水面反射阳光,突出了建筑的底层,黑色的钢肋骨与白色波纹地板形成鲜明的对比。锥形的钢悬臂在天窗上支撑着悬挑的屋檐,并与建筑周边的钢地板支撑相呼应。

由于其精确的工程设计和稳定的质量,建筑师选用了胶合木板,该材料是钢框架和定制玻璃系统的理想搭档,两者之间产生的误差最小。落叶松的胶合木板主要用于内部,再加上道格拉斯冷杉胶合板镶板,为室内营造出温暖的氛围,中央的“Y”形柱成为空间的焦点。“Y”形分裂在上部支持中央屋顶灯光,该照明设施贯穿了整栋建筑,从而将屋顶分开,并向天空开放。预氧化的钻石铜屋顶瓦采用庄园使用的粘土屋顶瓦,为新建筑提供了独特的特点。可锻铜形成了定制的边缘细节,使屋顶屋檐具有足够锋利。

建筑师的景观设计是建筑与周围环境相融合这一概念中不可或缺的元素,其设计包括游泳池以及环绕建筑的环形路线。从前区停车场,到一条蜿蜒小路穿过由大型蕨类植物组成的隐蔽花园,最终通向跨过湖面的Stepping Stone住宅。这些石头与高架走道和桥梁相连接。

在南侧,一个潜水平台延伸出去形成体验周围环境的中心点。人们可以通过甲板进一步下到一个砖砌的平台。然后,该路线下降至玻璃连接的下方,最终回到停车区。由此产生的效果是建筑和景观相互融合,创造出平和、有趣且吸引人的场所。

建筑的大部分都是预制的,这样可以缩短工地上的施工时间,减少浪费。建筑师基于重复的部分将设计开发成一个模块的建筑系统,从而在细节上实现更高的效率和精细化。

-
建筑设计: HAMISH&LYONS
- 面积: 150 m²
- 项目年份: 2016
- 摄影师: Will Scott Photography
-
厂家: Cantifix, Charnwood, Exterior Solutions, HESS TIMBER, Hess Lighting, Lumion 4D, Michelmersh, Sky-Frame, Trimble, Vectorworks
-
主持建筑师:Hamish Herford with Nick Lyons
-
工程师:Momentum
-
Steel Fabricator:WrightWay Structural Steel Fabrications
-
Roof Safety Access:Roles Broderick Roofing Ltd
-
Country:英国
来源:https://www.archdaily.cn/cn/946123
2.本站的原创文章,请转载时务必注明文章作者和来源,不尊重原创的行为我们将追究责任;
3.网络收集的我们都会重新编辑修改和注明文章源。
当前文章地址 https://muwusheji.com/374.html
