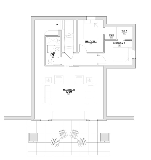
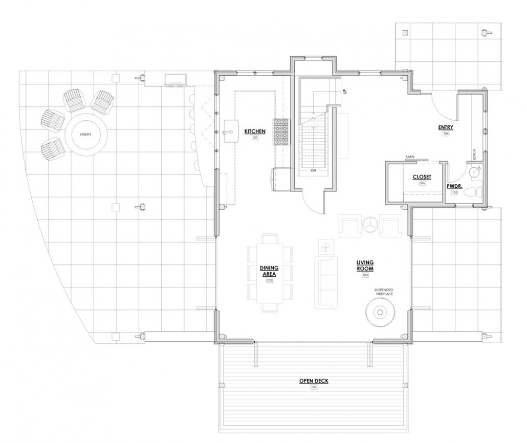
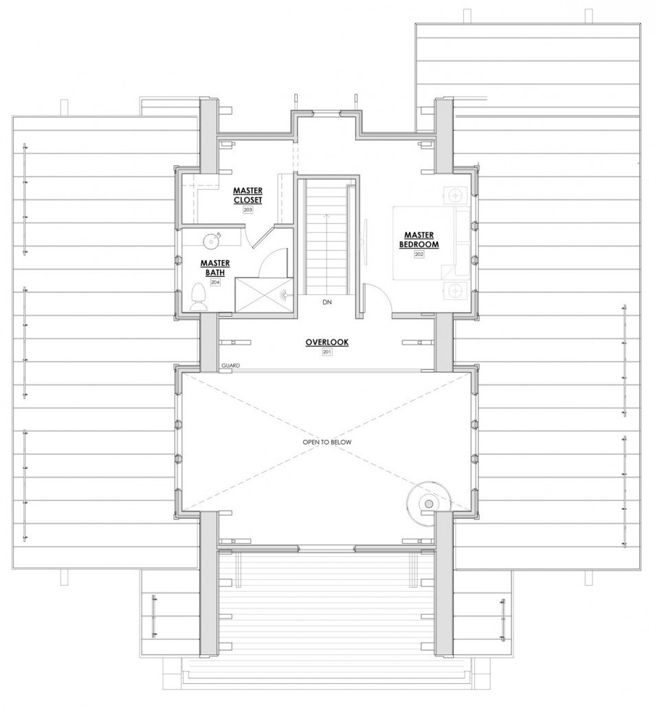
三层梁柱型山地木屋别墅设计图








专业木屋资讯平台,木屋设计施工一条龙服务。木屋设计,木屋CAD,木屋施工图,木屋效果图,木屋图纸,木屋建造
想要木屋建设及木屋方案设计、木屋图纸、木屋效果图请联系设计师
1.本站遵循行业规范,任何转载的稿件都会明确标注作者和来源;
2.本站的原创文章,请转载时务必注明文章作者和来源,不尊重原创的行为我们将追究责任;
3.网络收集的我们都会重新编辑修改和注明文章源。
当前文章地址 https://muwusheji.com/83.html
2.本站的原创文章,请转载时务必注明文章作者和来源,不尊重原创的行为我们将追究责任;
3.网络收集的我们都会重新编辑修改和注明文章源。
当前文章地址 https://muwusheji.com/83.html
THE END
二维码
文章目录
关闭
