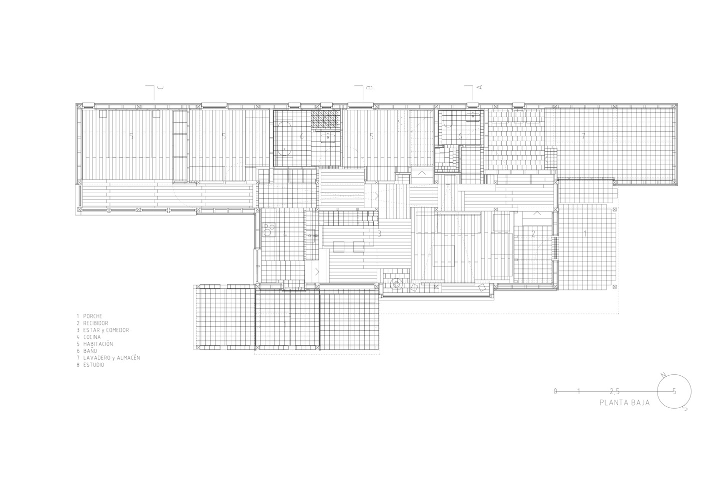
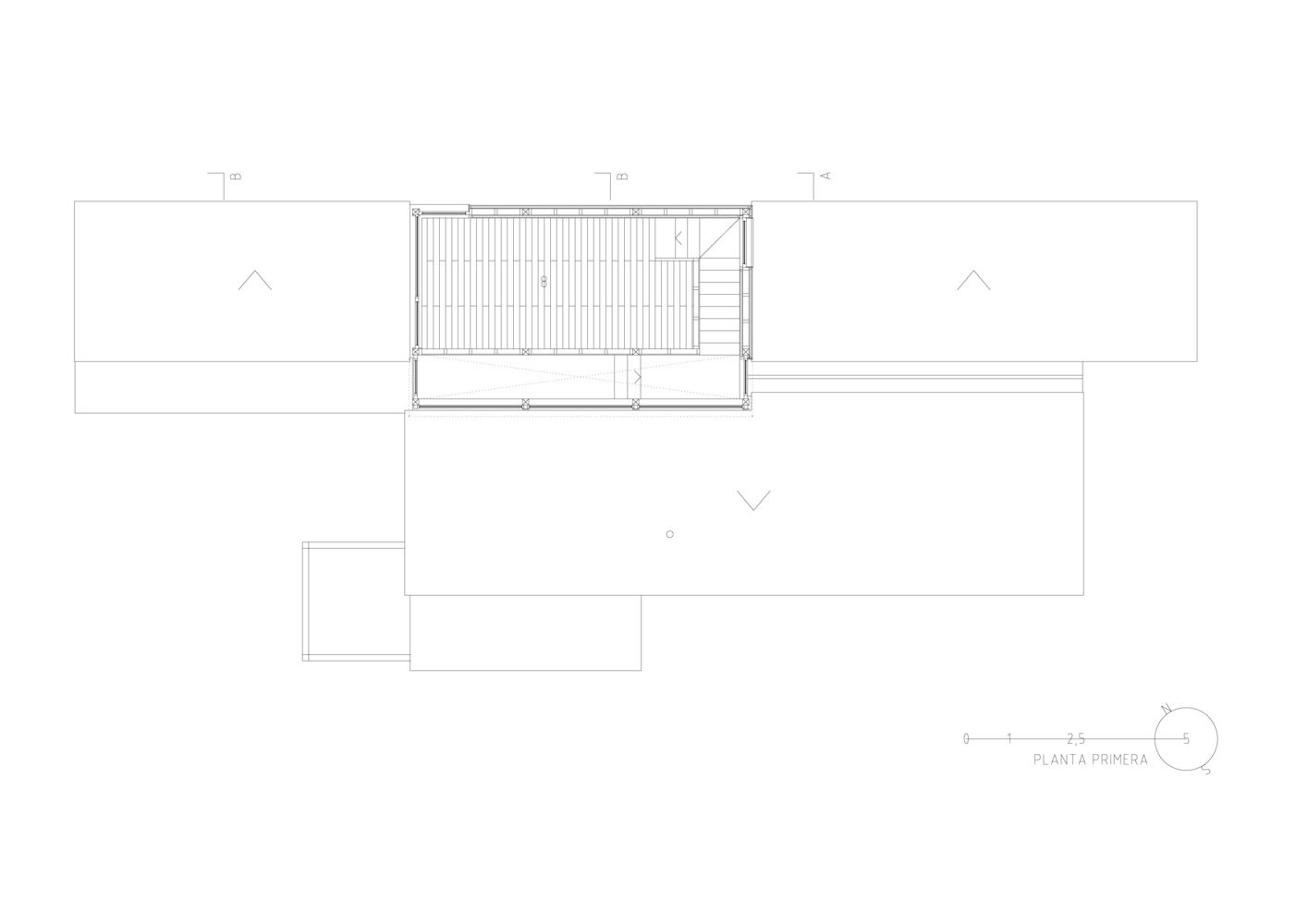
巴塞罗那原木小屋
在一片古老的橡树森林中,我们发现了一处景色绝美的基地。基地内落叶堆积,树荫婆娑,如梦似幻,让人心旷神怡。



























来源:http://www.archdaily.cn/cn/941602/ba-sai-luo-na-yuan-mu-xiao-wu-bosc-joan-poca-arquitecte?ad_source=search&ad_medium=search_result_projects
1.本站遵循行业规范,任何转载的稿件都会明确标注作者和来源;
2.本站的原创文章,请转载时务必注明文章作者和来源,不尊重原创的行为我们将追究责任;
3.网络收集的我们都会重新编辑修改和注明文章源。
当前文章地址 https://muwusheji.com/257.html
2.本站的原创文章,请转载时务必注明文章作者和来源,不尊重原创的行为我们将追究责任;
3.网络收集的我们都会重新编辑修改和注明文章源。
当前文章地址 https://muwusheji.com/257.html
THE END
二维码
文章目录
关闭
