Tacna吊空小木屋
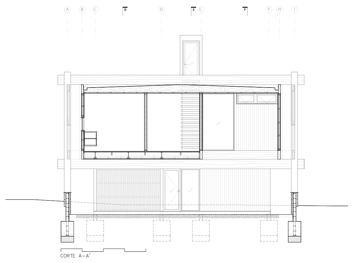
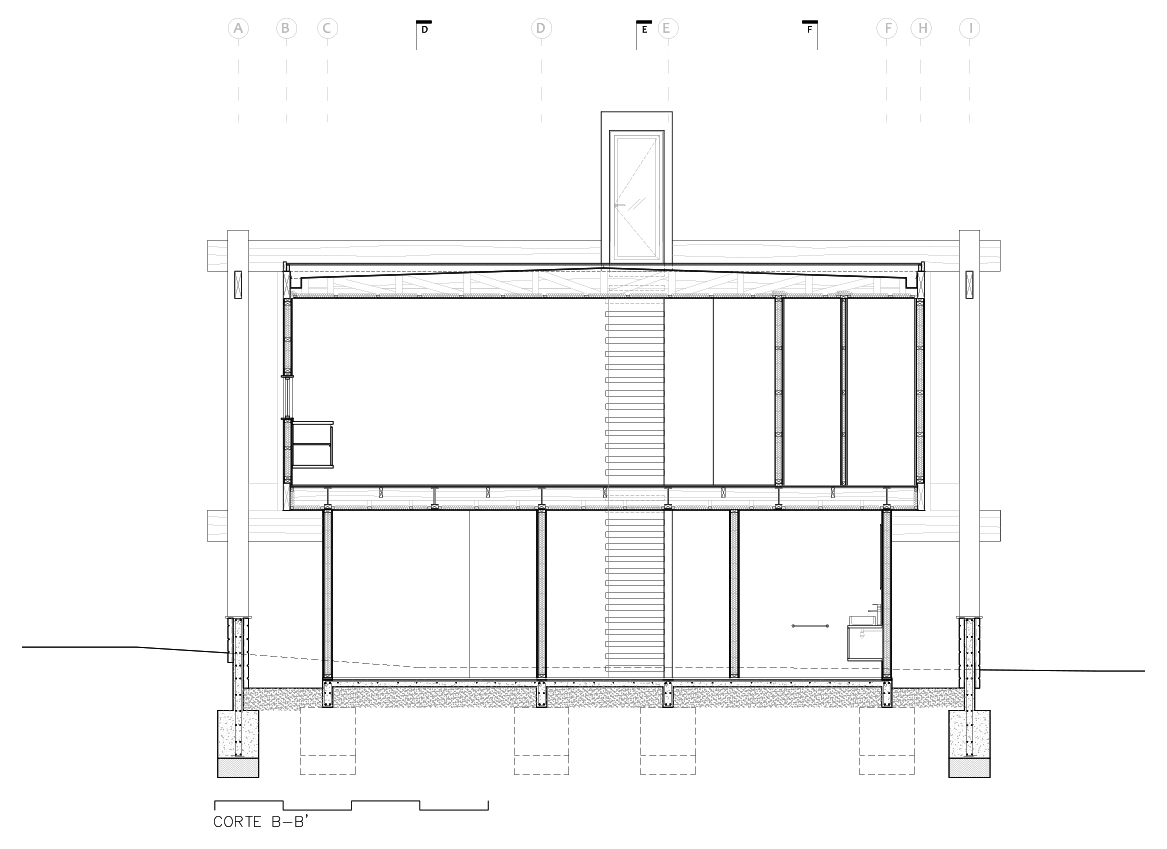
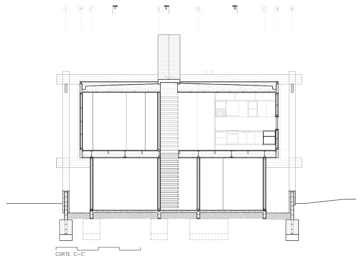
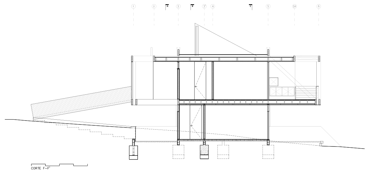
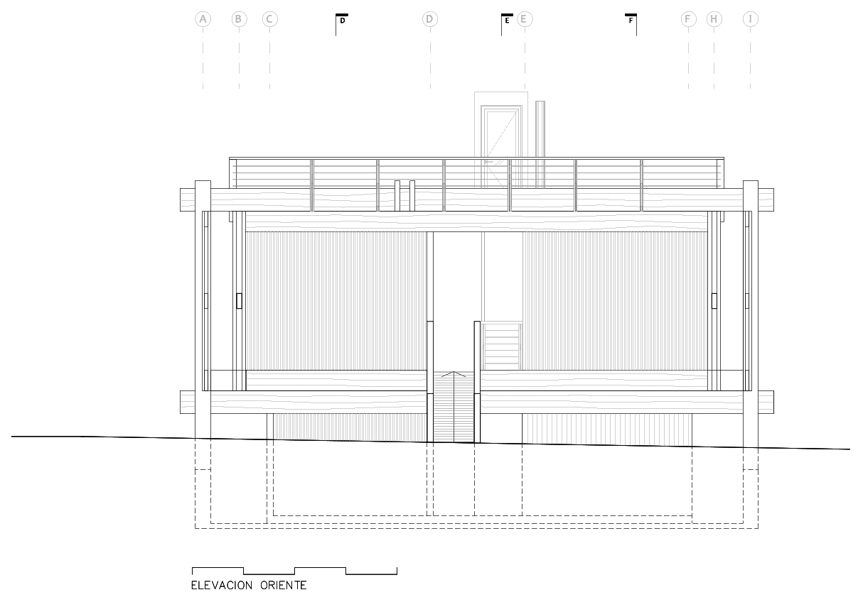
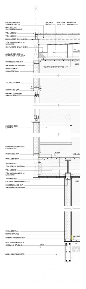
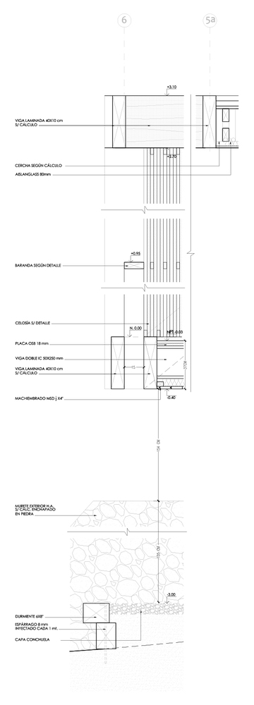
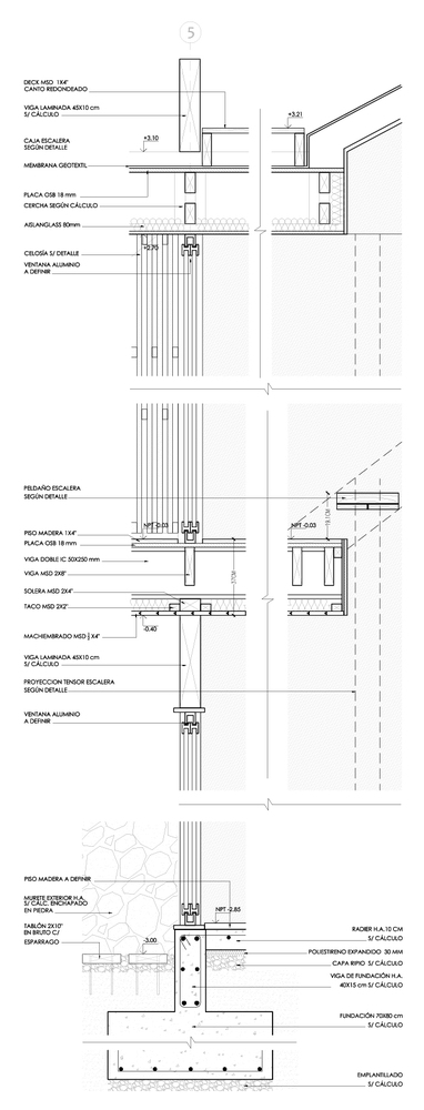
这个结构可以理解成一个脚手架系统,由10x40cm的层压木材构成。“脚手架”与建筑主体量相分离,由四道10.5米长的交叉梁,和四根6米高的双层木板柱(两块木板如三明治般夹住中间的梁)构成。四根木板柱精准地打在一块石制地基上,保护并支撑起了房子的底层。
根据这点,考虑到场地的斜坡地形顺着观景视线逐渐下落;作为应对策略,本项目的设计意象呈现出“秋千(swing)”的形式。“秋千”的意象可以理解为一个结构骨架,它允许承载一个悬挂着的建筑体量,建筑轻轻悬浮在地面上,这样满足了场地边角的日照采光条件。
根据现有的环境判断,本项目的首要目标是在法规允许的前提下,尽可能地拔高建筑的主要围护结构的高度,以保障最通畅的观景视野。








































来源:http://www.archdaily.cn/cn/918431/tacnaxiao-wu-jiao-shou-jia-zhi-cheng-de-guan-jing-zhu-zhai-par-arquitectos?ad_medium=widget&ad_name=more-from-office-article-show
1.本站遵循行业规范,任何转载的稿件都会明确标注作者和来源;
2.本站的原创文章,请转载时务必注明文章作者和来源,不尊重原创的行为我们将追究责任;
3.网络收集的我们都会重新编辑修改和注明文章源。
当前文章地址 https://muwusheji.com/258.html
2.本站的原创文章,请转载时务必注明文章作者和来源,不尊重原创的行为我们将追究责任;
3.网络收集的我们都会重新编辑修改和注明文章源。
当前文章地址 https://muwusheji.com/258.html
THE END
二维码
文章目录
关闭
