智利海滨松木屋
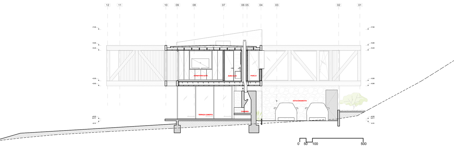
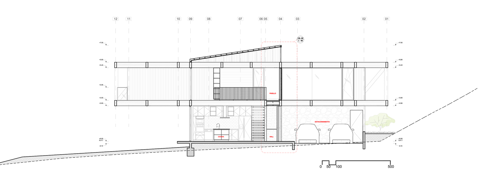
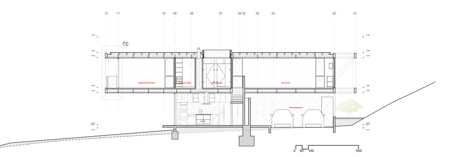
该建筑选址在智利中部的海岸附近,场地现状包括了一个陡峭的斜坡和一个高地。设计师要在这里设计一个独栋的住宅单元,他们选择了叠层松木作为建筑的结构骨架,该选择是因为松木在潮湿的盐碱气候中的所展现出来的适当的特性。


原则上讲,两个体块交叉处的上层框架的边缘是由横截面为40x15 cm的叠片框架制成的,该框架以交叉的形式相互支持以来满足结构需要,这样一来,就能够在建筑中引入更多的灯线。
这样一来,两个平行的网梁状结构就完成了,它们被安排在了结构的中央以便于支持并平衡两端的悬臂。
















1
























来源:http://www.archdaily.cn/cn/941251/zhi-li-hai-bin-song-mu-wu-par-arquitectos?ad_source=search&ad_medium=search_result_projects
1.本站遵循行业规范,任何转载的稿件都会明确标注作者和来源;
2.本站的原创文章,请转载时务必注明文章作者和来源,不尊重原创的行为我们将追究责任;
3.网络收集的我们都会重新编辑修改和注明文章源。
当前文章地址 https://muwusheji.com/259.html
2.本站的原创文章,请转载时务必注明文章作者和来源,不尊重原创的行为我们将追究责任;
3.网络收集的我们都会重新编辑修改和注明文章源。
当前文章地址 https://muwusheji.com/259.html
THE END
二维码
文章目录
关闭
