法国Ger体育馆
-
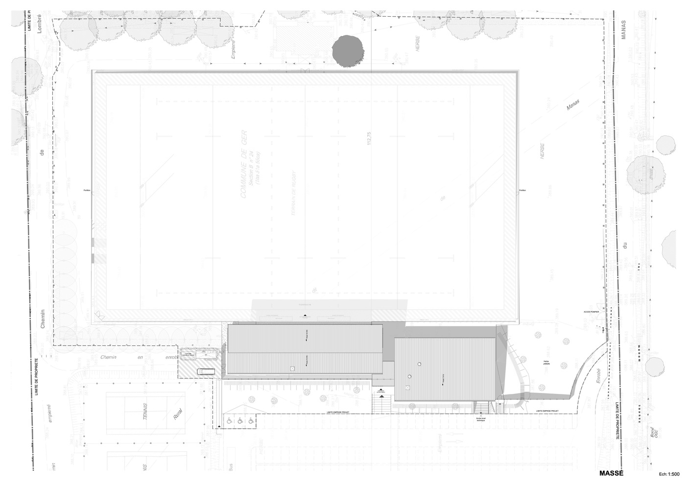
该地块的独特之处在于它位于一个高原上,可以看到比利牛斯山脉的壮观景色。这块高原上有农田、林地和一些城郊住宅。基地的自然特征启发我们设计一个与环境密切相关的体育场。我们的团队将田园的建筑风格巧妙地融入到了Ger的乡村中。

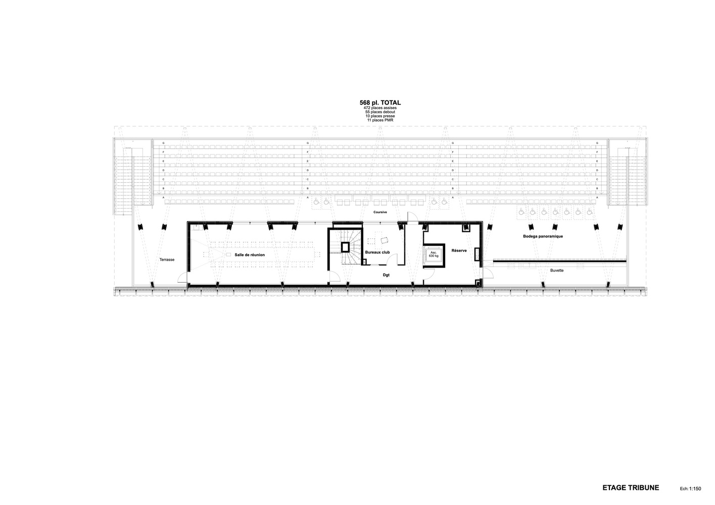
这是一个与景观共鸣的柔性建筑。看台简洁、纤细的线条限定了整个场地,赋予俱乐部强烈的个性。看台前缘的遮阳篷,与底部的木质网布结合在一起,给人一种轻盈的感觉,与看台的 "未经打磨 "的混凝土形成鲜明的对比。钢筋混凝土底座确保了结构的坚固性和耐久性,几乎不需要维护;它有利于处理地震和共振问题。盖板由底部的不透明盖板和顶部的半透明盖板组成。这种布置方式可以让阳光直接照射到草坪上,避免了地面上大面积的阴影区域,从而减少了冬季的寒冷。




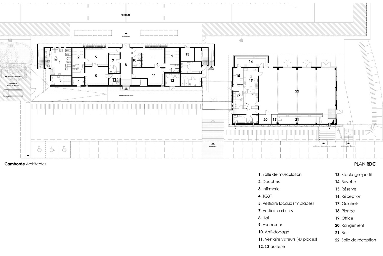
木板条定位在内部立面的西侧,在盖子的底面上的木板条就像一个木质花边,形成了一个有效的阳光过滤器。这种褶皱的木板条使看台具有独特的外观。三角形的龙门架提供了有效的支撑和天棚的创新图形。接待大厅的建筑结构与眺台紧密相连。盖子和西侧的锌板覆盖,创造了一个折叠式的空间,使房间的玻璃体量变得更加丰富。胶合的层压木框架在接待处创造了温暖的氛围。














建筑师:
Camborde Architectes - 面积: 930 m²
- 项目年份: 2019
- 摄影师: Xavier Dumoulin
-
厂家: GRAPHISOFT
-
客户: City of Ger
-
工程师: OTCE (structure) // Bio’Fluides Concept (fluids & thermal)
来源:http://www.archdaily.cn/cn/937921/gerti-yu-guan-camborde-architectes?ad_medium=widget&ad_name=more-from-office-article-show
1.本站遵循行业规范,任何转载的稿件都会明确标注作者和来源;
2.本站的原创文章,请转载时务必注明文章作者和来源,不尊重原创的行为我们将追究责任;
3.网络收集的我们都会重新编辑修改和注明文章源。
当前文章地址 https://muwusheji.com/261.html
2.本站的原创文章,请转载时务必注明文章作者和来源,不尊重原创的行为我们将追究责任;
3.网络收集的我们都会重新编辑修改和注明文章源。
当前文章地址 https://muwusheji.com/261.html
THE END
二维码
文章目录
关闭
