法国北珀里克学校
项目场地位于郊区,具有明显的地形变化。这个项目采用了强有力的环境方法:它沿Cami Salie路而建,却在中心围合出活动空间。用一个大拱门作为入口信号,封闭环境与公共空间紧密相连。

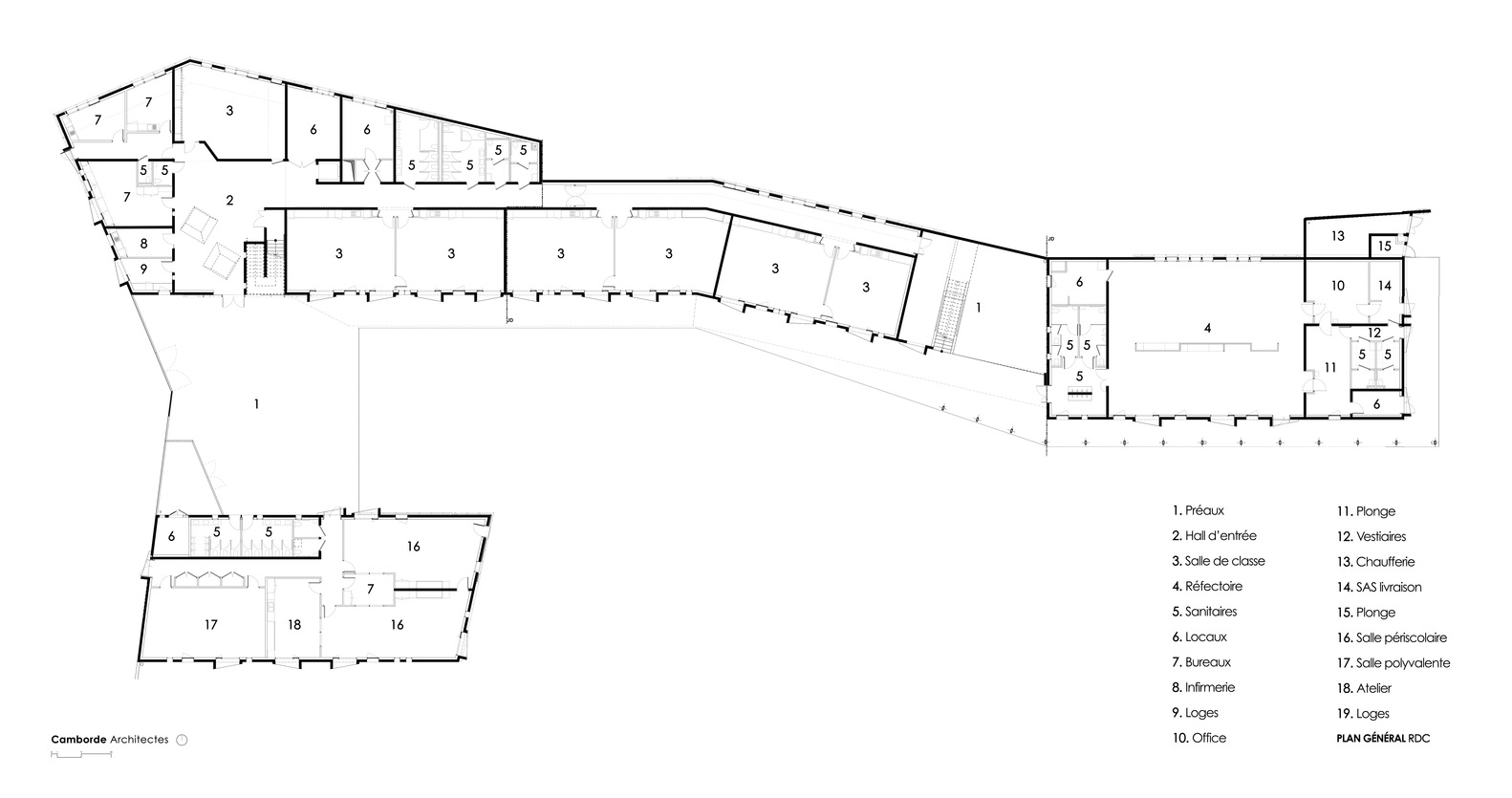
学校共有两层,坐北朝南,可以欣赏夜景与比利牛斯山脉的全景。学校共由三栋独立的建筑组成:教学楼、餐饮楼及课外活动楼,由一整面屋顶链接。不寻常的建筑结构启发了儿童的想象力,对其感官和创造力提出了挑战:折纸手法的屋顶与交替排列的木质和混凝土结合,创造出温暖生动的外墙。
建筑入口与地面植物形成平衡的节奏感。地下室窗户的随机布局突出了建筑物的趣味性。混凝土框架突出了开口并为孩子们创造了座位。学校配有加拿大的水井式的地热系统,可以根据季节加热或冷却建筑物内的空气。













来源:http://www.archdaily.cn/cn/937924/bei-po-li-ke-xue-xiao-camborde-architectes
1.本站遵循行业规范,任何转载的稿件都会明确标注作者和来源;
2.本站的原创文章,请转载时务必注明文章作者和来源,不尊重原创的行为我们将追究责任;
3.网络收集的我们都会重新编辑修改和注明文章源。
当前文章地址 https://muwusheji.com/262.html
2.本站的原创文章,请转载时务必注明文章作者和来源,不尊重原创的行为我们将追究责任;
3.网络收集的我们都会重新编辑修改和注明文章源。
当前文章地址 https://muwusheji.com/262.html
THE END
二维码
文章目录
关闭
